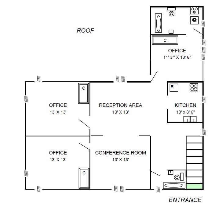
Leeds Ave Office

OFFICE SUITE FOR RENT
2nd Floor
4601 Leeds Ave. Baltimore, MD 21229
Located in Baltimore County
Approximately $ 2,200/mo
Please call Ed Libertini 410-247-5800 for current rates.
*Lots of light
*Wired for cable TV and phone jacks
*Hardwood floors
*All heat and water included in rent
*Separate meter for electric only
*Two year lease preferred
*Security deposit is equal to 1 months rent
*Prefer no pets
*Available off-street parking
*Usable yard
*Off site publice storage units within 1 mile
*Measurements are approximate

